建案介紹-北屯區-鼎佳建設-森MOMA
此建案2015年5月開始潛銷
如果您有更詳細的資料
歡迎您的提供喔!大家一同討論
以下是建商的標題,取的很…….直接吧,直接就說了 
你買得起的水湳經貿
代表什麼~代表水湳經貿要UP UP UP了,請把握吧
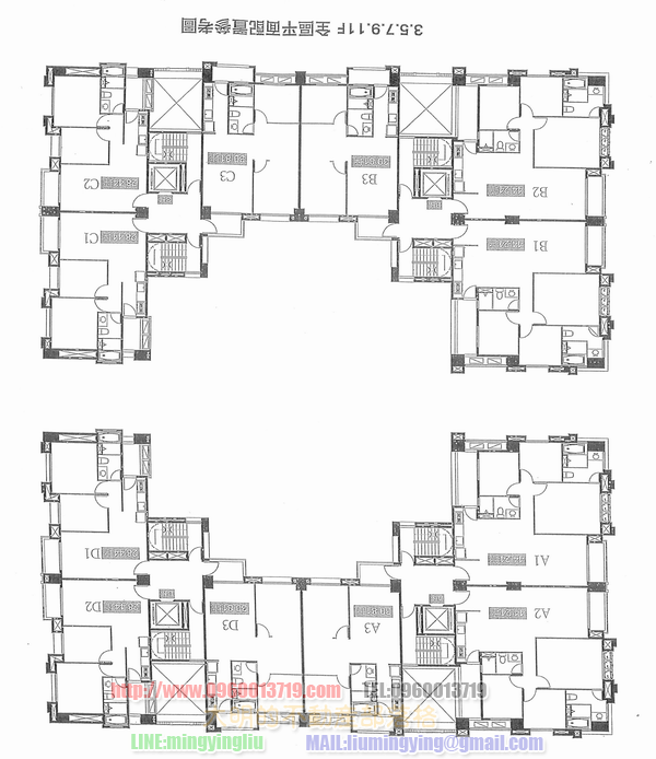
建案的平面圖–大明也把房型數標上去囉
建案基本資料
再來是GOOGLE標出來的位置圖–位於中清路vs敦化路
停車場那一塊是郵局的地喔,未來很有可能郵局就在家旁邊
寄郵件就方便多了,而且郵局旁,警察也會定期巡視,安全加分啦…XD
【棟別方向對照】把地藉加上棟別上去,這樣應該看的更明白吧

【棟別平面展示】

【格局展示】A2,B2

【公設】週邊的環境還是以透天為主,所以高一點的樓層,視野不會被擋住喔

【配備】
●客、餐廳及廚房鋪設60公分見方拋光石英磚
●臥室鋪設木地板
●廚房配備大雅廚具
●三星石檯面
●林內3機
●衛浴全開窗、規劃乾溼分離
【特點】
●付款方式極為清鬆,低自備款
●5月初開始潛銷並開放預約
●規劃2房28坪,2+1房30坪(稀有產品),3房44坪
●鼎佳建設首案.捷運橘線敦化捷運站
●60米內有楓康、五金賣場、便利商店
●該區唯一2房產品,總價為區域最低
●驅車10分鐘可上台74線,交通便利
【大明觀點】
-
資料不多,但是還是把有的資料都提供給大家
-
這建案是鼎佳建設是第一個案子
-
所以我想建設公司應該不會拿石頭打自己的腳XD
-
而建案的四週大多都是舊透天,所以高樓層的視野應該不會被擋
-
而另一個主打點是捷運橘線敦化捷運站
-
雖然不明白什麼時後這個捷運站會完成
-
但即使沒有捷運站的加持,別灰心,我們還有捷運綠線啊
-
而且還是有水湳經貿園區的加持
-
加上敦化路和中清路,現在吃喝玩樂,生活機能,該有都有了
-
所以也請放心囉
-
實際去建案的現場看過了,價格方便~嗯~~~
-
只能說都有跟上週邊的發展,而正成長^^”
-
有興趣此案者,可以關注一下喔!
【相片欣賞】
再附上幾張基地的外觀照,可以看到停車場和楓康超市吧^^
附近的公園,大明也拍了幾張,請看[新平公園][老樹公園]




















