建案的平面圖

蘋果日報地產王的平面圖

建案基本資料

再來是GOOGLE標出來的位置圖–位於五權路、英士路口
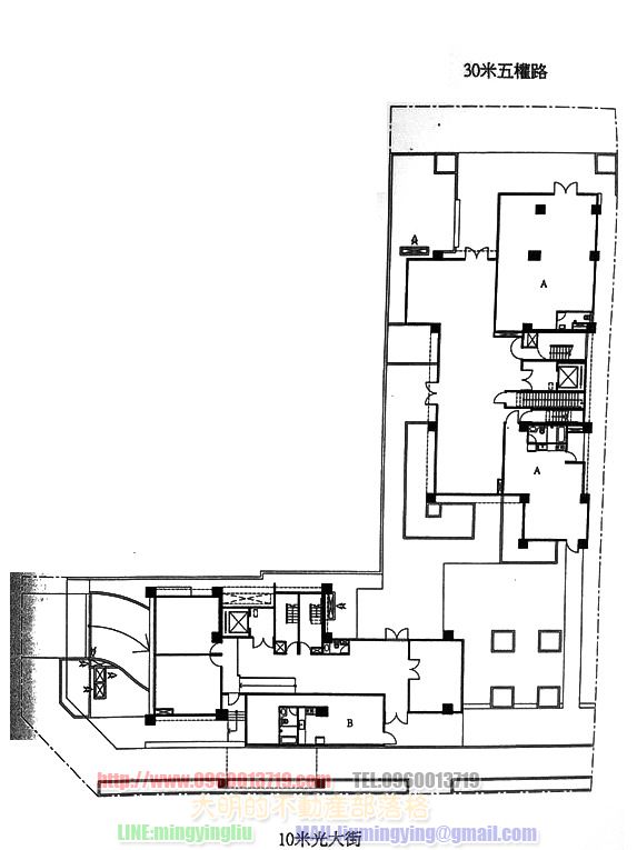
完全配合地型~為一個L型的蓋法


【附近生活機能】

【建材配備】
●全案採用鋼木門配電子鎖
●地板鋪設80公分見方冠軍牌拋光石英磚
●廚房配備義大利Stosa系列櫃體
●林內抽油煙機,●衛浴採用德國V&B系列
●配備V &B馬桶、Viega浴缸、Ariston洗衣機
●也附設瞬熱式迷你電熱水器
以下附上合約書上面的建材配備給大家看仔細一點^^








【交通】
●如下圖
【地點】
●位於五權路、英士路口

【附近的國小-國中-市場-公園】
國小

國中

市場

公園

【公設】

【車位配置圖】



【一樓平面圖】

【特點】
●台中老字號建商林鼎實業,2、3年才推1案
●「日。光寓」因應豪宅市場趨冷,改走小而美路線
●全案皆2房,但具備3面採光條件
●室內格局仿美式、日式公寓,廚房、餐廳鄰近門口
●外觀採錯層設計,地下室為全平面車位
●此區交通、生活、醫療機能便利,鄰近的中區市容也正在逐步更新,未來文化氛圍將更濃厚
●台中少見的全2房產品,具備3面採光
●採美、日式公寓規劃,浴室、廚房鄰近門口
【大明觀點】
在西屯區時大明我就很喜歡林鼎這個建設公司
蓋出來的房屋,質感不必說,進去就可感建商的用心
而北區這一帶原本就是老舊建物居多
這次有了新的體驗,而且都是兩房產品
採光也顧到了,建材也不輸人
我想這地點蓋這個建案,真的是北區人的褔音^^
【相片欣賞】
社區外觀照片-施工照如下


















樣品屋照片








