建案的平面圖

建案基本資料

再來是GOOGLE標出來的位置圖–位於國安二路和國安一路中間


【公司簡介】
●太子建設公司於民國六十二年九月在台南成立總公司,由台南紡織、統一企業、環球水泥等相關公司之殷實企業家集資組成。公推吳修齊先生為董事長、莊南田先生為總經理,以投資興建住宅商業大樓、觀光飯店、工業區開發、室內運動休閒設施及停車場及其相關服務……等為主要業務。 民國六十二年台南總公司設立後,民國六十三年台北分公司、民國六十七年台中分公司、民國六十八年高雄分公司亦陸續設立,並於民國八十年公開上市,成為少數推案遍及全省的建設公司。
●成立迄今,逾1/3個世紀,始終秉持敬業務實的精神,在全省各地陸續推出精心規劃、施工嚴謹的高品質住宅,業務蒸蒸日上。 除營建本業屢創高峰外,太子建設近年亦投入飯店觀光產業及BOT案的開發,積極拓展事業領域,於營建本業收益外增加固定性收益,以維公司歷年營運佳績,永續經營。
【台中-W時代】官方網站介紹

太子W引領您跟上財富 Style 2015年太子再創中科新核心,繁華盛況從原本J-mall、TECH Mall、遠東愛買、台糖、東海五大商圈,一直延伸至國安路,加上樂橫丁及米平方森活廣場等大型Mall預定地,讓國安路躍升中科新核心地王。 太子向來擇地眼光總是領先趨勢,繼【雲世紀】百億大案震撼中科特區,載譽再出發首推1+1-2房時尚精品宅【W時代】展現深耕區域的決心,更預見中科持續擴大發展效應,與台積電進駐帶來龐大居住需求量,勢必將是時尚精品宅的Style來臨! 強調W潮風的休閒會館,專屬科技新貴,優質管理、商務會館設計,不論是投資置產提高收益、出租率,都是當今理財最佳選擇!
【建材配備】
●全棟規劃用電,另有緊急發電機
●夜間有燈光計劃,全棟用LED燈
●社區植栽澆灌,採雨水回收系統
●戶戶贈送儲熱型熱水器
●採E化視訊對講機
●客餐廳為拋光石英磚
●臥室採耐磨地板
●衛浴有免治馬桶
●陽台有電動曬衣橫桿,陽台並加做窗戶
●廚具採人造石檯面
●加贈電陶爐及蒸烤爐
●衛浴均當層排風,樓下抽煙樓上不干擾!
●兩房有一衛浴(加浴缸)及二衛浴之規劃
建材圖片如下














【交通】中科未來一定是交通的中心
●

【地點】

附上都計圖
環境都是重要地標
【公設】
很齊全的公設,請看大明所標上的公設圖,以下為一樓大廳

二樓也有很多實用公設
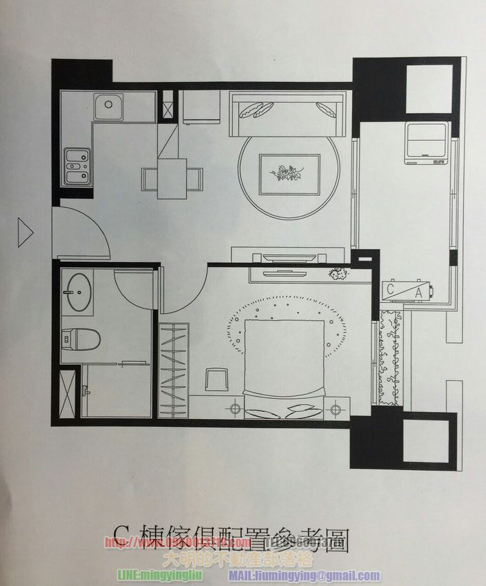
【房型介紹】








【特點】
●低自備款(10%),期款(10%)分二次於106年11月支付5%,交屋再付5%攤還
●基地右側有國豐公有停車場,後方有樂町美食市場,左側近米平方生活廣場,位中科未來正核心區
●左側為國安國小,對面是私立麗澤中小學,近西屯路福科國中?東大附小?中科實驗中學,九到十二年免接送
●基地七百零二坪,單純零店面,安靜純住宅
●社區前庭退縮二十二點五米,車輛進出有緩衝,保障住戶安全,右側有森林樹海水景,自家就有小公園
●總戶數兩百戶,為一房二廳及兩房兩廳規劃~均質飯店宅
●地下一樓純機車位,B2~B4純汽車位,B5為機械車位,總車位共221位,出入單純,車位足夠,有利增值
●戶戶樓高3米3,增加空間感!
【大明觀點】
首先是蓋完的時間,拉的滿久的^^
所以價格也當然比現在其他的建案,再進前一點
但房市房價不是由政府決定的,是由市場決定的
如果希望中科的地點,想要更優質的生活
我想太子W可以去看看,除了公設,建材比雲世紀再提升
價格也提升了(笑)
但房市就是這麼有趣,有供給就有需求
所以如果有屋主想要委售或買屋,我們房仲才是站在中間的立場
沒有我們合理和屋主與買方溝通
房市才是真正會亂,所以放心交給永慶不動產-大明^^
【相片欣賞】
社區外觀模型照片









社區公設建商3D示意圖照片









實際拍攝基地照片,有沒有很有感覺啊~快來看屋吧!












