
建案介紹-西屯區-時代建設-時代麗景大廈
================================================
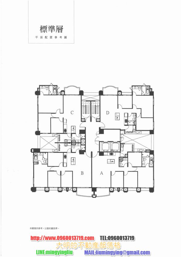
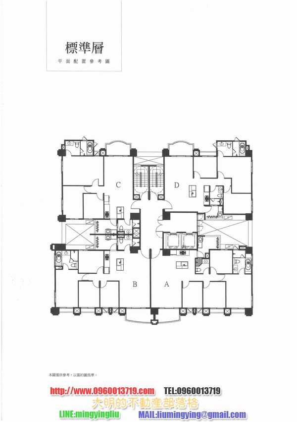
建案的平面圖
================================================
建案基本資料
================================================
再來是GOOGLE標出來的位置圖–位於西屯區福星北2街、近福星北路口
================================================
【建材配備】
●戶戶開放式廚房配中島料理檯,主衛浴配TOTO免治馬桶,外觀採古典建築風格
●客、餐廳地板鋪80公分見方拋光石英磚
●臥室鋪德國進口耐磨木地板
●廚房配石英石檯面廚具附蒸烤爐
●石英石檯面中島料理檯
●主臥衛浴配TOTO免治馬桶
●Panasonic暖風機
●30公分吸頂花灑
●全棟窗戶配氣密窗搭配5+5mm及5+3mm膠合玻璃
【特色】
●由時代建設一群經驗老道,品牌年輕的團隊組成!
●建築風格走古典風~所有建案皆貫徹古典風格
●建設風格典雅,建築、建材、工法更顯珍貴!
●時代建設的六大建築特色!
●頂冠~象徵帝王皇冠加冕~聚貴氣於一身!
●柱托~牛腿~多為古典建築中裝飾外觀~
●拱頂~古羅馬建築和文藝復興時期的重要特徵!
●拱門~羅馬建築風格結合希臘石柱~象徵榮耀的建築特色!
●多利克柱式~圓柱呈上細下粗~屹立不拔的象徵~
●科林新柱式~圓柱上方經由裝飾~呈現古典風格的列柱~
●以上建築風格很多工法都在出現在新古典美學的建築!!
【時代建設其他建案代表作】
●時代春天大廈、時代花園大廈、時代圓滿大廈
●新古典美學建築的工法、只要是時代建設推案座落的地方~讓每個人都會忍不住多看一眼
【地點】
●鄰近文修公園、逢甲商圈,休閒及消費機能皆備
●位於西屯區福星北2街、近福星北路口,屬12期重劃區,福星北2街西向約百公尺有7600坪文修公園,福星北路南向即達逢甲商圈,騎機車1分鐘,未來經漢翔路可至規劃中的水湳經貿園區。
【公設】
●1樓門廳挑高8.8米,內設接待區
●宅配室
●門廳後方有健康吧台
●會客區
●2樓有運動吧台
●視聽室
●家教室
●健身房
●頂樓則有多功能瑜伽室
●開心農場
●空中花園
●戶戶皆3面採光,雙衛浴開窗,每戶皆配石英石檯面廚具及中島料理檯,外觀則延續該公司以列柱、門拱打造的古典建築風格。
【其他】
●客、餐、廚等空間佔全室近半面積,45坪、3房也有開放式廚房與中島料理檯,符合小品菁英住宅居住機能。
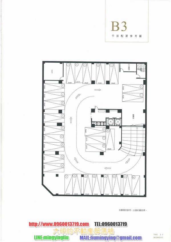
●停車位售價:平面車位130~160萬元
●單層樓高:1樓5.6米,2樓以上3.3米
●全案規劃45坪3房及50坪4房,最高樓層,視野較佳。
●D戶3樓位於車道出入口正上方,將有噪音干擾。
【大明觀點】
十二期建案最最古典感的外觀吧
真的很美,又是小戶數的
進去後質感真的是不一樣,低調中的奢華
出來又可以感受到逢甲附近的熱鬧
真是特別的一個建案
如果要說鬧中取靜的地點的話
我想時代麗景大廈可以來當一個代表
而一進去的門廳又是挑高的
進去後看到視聽室,健身房,頂樓還有空中花園
進去屋內,戶戶都也開窗,而且不但戶戶開窗
還戶戶三面採光咧
人客啊~古典風,小豪宅
我的腦中就是浮現出,哇~這是豪宅的想法了
以欣賞房屋的角度來看此建案
來看看吧,相信您不會失望
【相片欣賞】
社區外觀照
社區室內照
建案當初的3D示意圖
各樓層格局
建案風味
停車室規劃




















































