建案介紹-北屯區-創健建設-知己在鄰

================================================
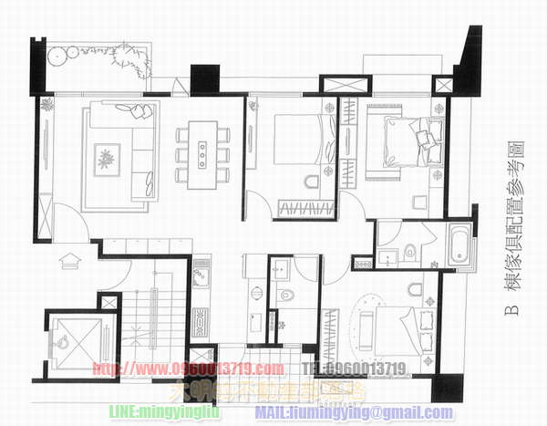
建案的平面圖
================================================
建案基本資料
================================================
再來是GOOGLE標出來的位置圖–位於北屯區后庄北路.后庄七街口
================================================
【棟別格局】B棟和C棟
【建材配備】
●該案1樓高7米,標準層高3.4米
●每戶採用浮動式地板,厚25公分並配備防震墊,隔音量達53分貝
●廚房與餐廳各為獨立空間
●廚房採用義大利STOSA品牌櫃體
●配備林內3機
●蒸烤爐及義大利INDESIT內嵌式冰箱
●衛浴採用德國DURAVIT系列
●配備懸壁式馬桶
●衛浴乾溼分離,配備懸壁式馬桶。
●主臥鋪德國耐磨木地板,大面積開窗。
【交通】
●該案緊鄰重劃中的14期,位處3條計劃道路之間,距離中山高中清交流道約2.5公里,后庄北路有全聯福利中心可供採買,但步行較遠
●后庄北路為主幹道之一,往西通達水湳經貿園區,往東連通11、14期重劃區
【地點】
●
【公設】
●暫略
【其他】
●該案是知己系列第三個建案,外觀、格局也佳,不過戶數較少,管理費會比較高
●水湳知己在鄰 基地3面臨路
●每戶挑高3.4米,客廳可通往陽台。
●台中市水湳一帶建地稀少,近2年又因水湳經貿園區議題,僅存建地紛紛推出大樓案
●創健建設新案「知己在鄰」周遭為純住宅區
●環境安寧,基地3面臨路,規劃2棟雙併大樓
●每層2戶,戶戶3面採光,適合換屋族
【大明觀點】
知己系列中戶數最少,但也是第三個系列最新的
價格當然就也就最高囉
看得出來知己系列在水湳地區,都以小戶數為主
想要走出自己不同的風格
不以戶數為主打,而是以家為核心,以鄰居為主題,加上大自然為加強因素
房屋的質感,其實不必多說,這可以自己用心去體會
但大明我很喜歡創健知己系列的DM插畫
讓人的內心會有暖暖的感覺喔
另外水湳地區週邊的建案,可以說是各建商卡位卡很兇
對這地區有感興趣的,趕快入手吧!
【相片欣賞】
先來看看網官照片
先來看看樣品屋的照片喔
那天要去看基地,在路上就看到很大的指示牌(真的很醒目)
基地就在知己人家的隔壁,只隔了一條馬路

知己人家和知己在鄰分別在對面而以^^.如以下標示
那天去看剛好看到公務人員在處理事務

可以看看隔壁已蓋好的大樓~

以下為建商的DM,很有家的感覺,十分的溫暖
































