建案介紹-北屯區-國聚建設-國聚之界

================================================
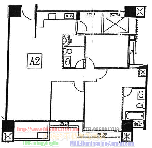
建案的平面圖
================================================
建案基本資料
================================================
再來是GOOGLE標出來的位置圖–位於后庄路跟后庄3街交叉口
================================================
【各棟格局圖】
【建材配備】
●附上合約書中寫的建材配備,讓大家明白一下

【交通】如下,交通網
●后庄路往中清路方向直行5分鐘即可到水湳經貿園區,位置處在台1乙線中清路附近,不論要去大雅、清水;經國道北上或南下;經74號線到大里、霧峰、鳥日、彰化,四通八達的交通網,讓住在這的人去哪都便利。
【地點】
●后庄路跟后庄3街交叉口
【公設】如下列彩圖

【建商的3D示意圖】

【建商的DM本】大明個人覺得用的質感不錯^^
【大明觀點】
中清路看到后庄路轉進去,不久就看到了
地點上來說,未來可以吃得到水湳經貿商圈
如果要吃點小東西,買點小東西的話
走出來后庄社區已形成不錯的生活機能了
而國聚建設成立到現在不到十年,算是異軍突起的建設公司
但每次推案都有佳績,現在應該也累積不少的死忠客戶吧
選地眼光精準,也是國聚建設會成長快速的主因之一
以下是國聚建設小檔案
●經營理念:打造中產階級住得起的好宅資料來源:國聚建設
●推案作品:國聚新都里、國聚品苑、國聚知青、國圖一號會、國聚之丘、國聚之界、國聚花園御所。
●推案地區:台中市
●推案類型:住宅大樓
●成立時間:民國97年
而用心付出就會有回饋,區域深耕 口碑行銷攬客,地段至上 市場回歸理性
我想對於國聚建設想要多多明白的人,真心覺得可以去了解感受一下
【相片欣賞】
於2015年05月19日去現場拍攝外觀的




































